某科創智谷園區及配套建設項目-成套配電箱深化圖
聲明:您必須遵守我們的協議,如果您下載了該資源行為將被視為對《電天下賬號管理規范》全部內容的認可,本網站資源來自原創,僅供用于學習和交流,請勿用于商業用途。如有侵權、不妥之處,請舉報本資源,我們將及時審核處理!
某科創智谷園區及配套建設項目-成套配電箱深化圖
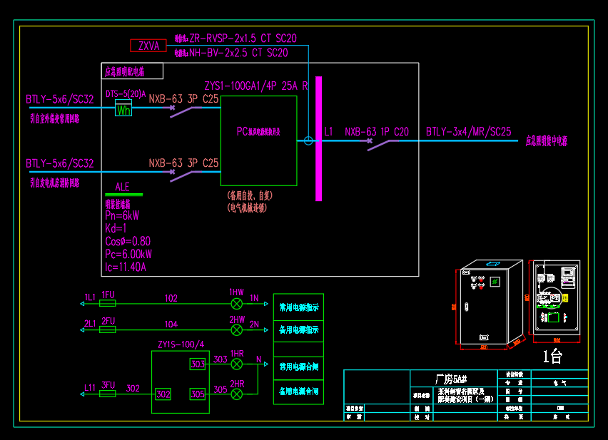
該圖紙是某科創智谷園區及配套建設項目-成套配電箱深化圖,共18臺。根據客戶的原圖紙,按對應的開關品牌排布,設計出配電箱箱體圖,供鈑金廠生產箱子用。圖紙包含動力柜、基業箱、水泵控制箱等等。有雙電源原理圖、穩壓泵控制原理圖、分勵脫扣原理圖等,還有對應開關的模型圖章,供下載參考學習使用。






好的,以下是針對用戶輸入標題“某科創智谷園區及配套建設項目-成套配電箱深化圖”的解釋與描述:
---
**標題解釋與描述:**
**項目名稱:** 某科創智谷園區及配套建設項目
**子項內容:** 成套配電箱深化圖
**解釋說明:**
本項目為“某科創智谷園區及配套建設項目”,是一個綜合性產業園區的建設規劃,旨在打造集科技創新、辦公、研發、生產等功能于一體的現代化產業園區。在該項目建設過程中,電力系統的合理配置和安全運行是保障園區正常運作的重要基礎。
其中,“成套配電箱深化圖”是指在電氣設計階段中,對園區內各建筑或區域所使用的**成套配電箱**進行**詳細設計與圖紙深化**的工作成果。成套配電箱是電力系統中的關鍵設備,用于實現電能的分配、控制、保護和計量等功能。
**深化圖的主要內容包括:**
1. **配電箱的結構布置圖**:展示配電箱內部元件(如斷路器、隔離開關、電流互感器、繼電器等)的布局。
2. **電氣原理圖**:詳細說明配電箱內部電路連接方式及控制邏輯。
3. **接線圖**:標明各個電氣元件之間的接線關系和端子編號。
4. **技術參數表**:列出配電箱的額定電壓、電流、功率、防護等級等關鍵參數。
5. **安裝與調試要求**:提供配電箱的安裝位置、安裝方式及調試注意事項。
**意義與作用:**
- 為施工方提供準確的安裝依據;
- 確保配電系統的安全性、可靠性與可維護性;
- 便于后期運維管理與故障排查;
- 符合國家電氣設計規范及行業標準。
---
如果您有進一步的問題,例如關于配電箱選型、圖紙審核、施工要點等,歡迎繼續提問,我將為您詳細解答。
某科創智谷園區及配套建設項目-成套配電箱深化圖的相關資源推薦
會員專享
開通會員
升級會員獲取海量資源免費下載
會員免費下載
原價360D幣 限時
288D幣 購買
上傳資源賺收益
格式:zip
瀏覽:160
收藏:2
瀏覽:160??|??
收藏:2
上傳時間:2025-09-18
大小:1.6M
舉報作者相關作品
排名
昵稱
瓦特值
熱門標簽







